OCTA HAUS
Casa Moyses
Casa Moyses
em até 3x de R$ 0,00
Couldn't load pickup availability
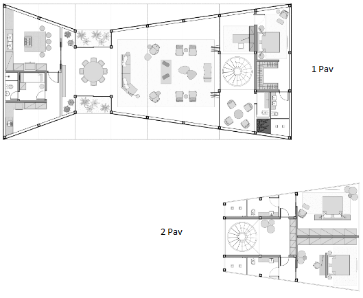
Em busca de um visual natural, mas com ares urbanos, André Bacalov, Kika Mattos e Marcela Penteado elegeram uma paleta composta de preto, branco e tons metálicos. A biriba, uma madeira retorcida, e o elemento que mais se destaca nos ambientes de casa e aparece tanto na pérgula como dando forma a uma divisória. As linhas orgânicas do material se conectam com o desenho de outras peças, como a mesa de jantar, que abraça a jabuticabeira.
Detalhe: a árvore já vivia no local e brilha lindamente no projeto, ultrapassando os limites do forro

Casa pode ser entregue em até 8 meses.
Conseguimos também parcelar (financiar) em até 420 parcelas - entrada de 30%
Entre em contato conosco para realizar o seu orçamento sob demanda. o Projeto pode ser adaptado e orçado seguindo as suas necessidades.
e-mail para contato: contato@octa.haus
Alguns Parceiros:

Compartilhar

-
-
FRETE GRATIS
Frete gratuito para todo Brasil