FCstudio
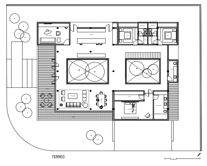
Casa Caxingui
Casa Caxingui
em até 3x de R$ 1.416.666,66
Não foi possível carregar a disponibilidade de retirada.
Projeto/Ano: 2018 | Área construída: 528m2 | Imagens: FCstudio
Conceito
Duas lajes flutuantes sobrepostas e perfuradas no centro compõem a Casa Caxingui. O conceito de pátio está presente nesse projeto e a contemplação ao jardim é constante.
O caminhar revela a horizontalidade da proposta onde sempre existe um grande espaço vazio (intervalos) entre os cheios (programas inseridos nas caixas de madeira).
O teto jardim foi tratado como a quinta fachada do edifício. Um exercício de composição e escolha dos equipamentos, assim como as janelas zenitais e ofurô. Além de belvedere urbano, a cobertura verde contribui para o conforto térmico da casa.

Casa pode ser entregue em até 8 meses.
Conseguimos também parcelar (financiar) em até 420 parcelas - entrada de 30%
Entre em contato conosco para realizar o seu orçamento sob demanda. o Projeto pode ser adaptado e orçado seguindo as suas necessidades.
e-mail para contato: contato@octa.haus
Alguns Parceiros:

